123_ART
001_BATHOUSE
002_PROSTHESIS
004_PIFFLE
005_LIFT
006_LED
007_FUTURE M50
008_RECYCLE
009_SNIP
010_PARASITE
011_PAVILION
012_SHED
013_ARK
014_OFFICE BIRR
015_HUT
016_DECK
017_CHARGE
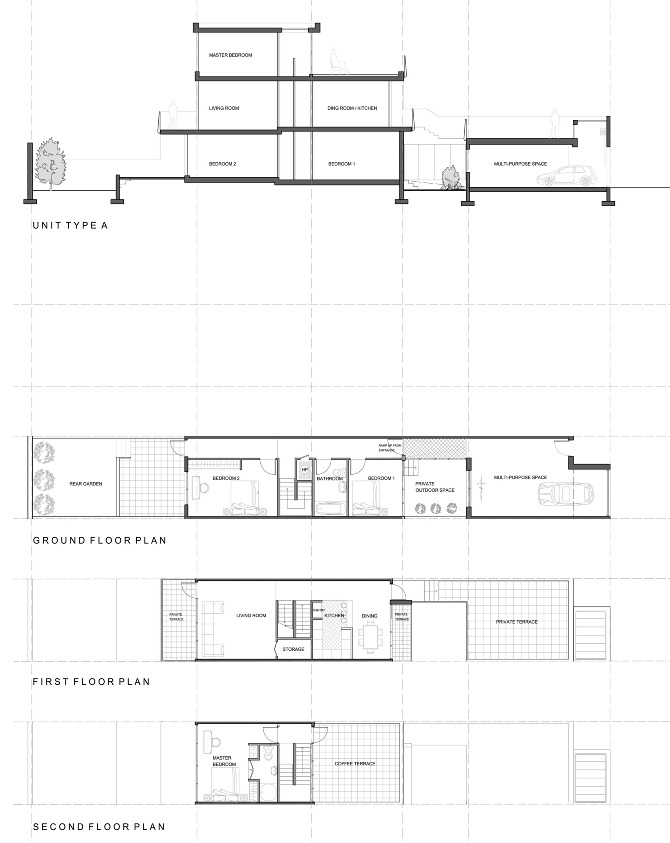
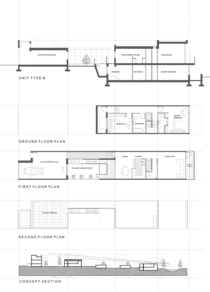
018_LIVE LANE
020_CANAL
021_BED
035_NURSERY
036_REALITY CUES
099_SCRAPS
000_ABOUT ME
000_MANIFESTO
index
018_LIVE LANE












November 2005  (871 views)  Filed under housing, lane, residential 
123_ART 
melancholia, durer 
001_BATHOUSE 
bats 
002_PROSTHESIS 
prosthesis, martello tower, prosthetic 
004_PIFFLE 
future city, greeble 
005_LIFT 
elevator, lift 
006_LED 
LED, Disco, Lighting 
007_FUTURE M50 
m50, motorway, pedestrians 
008_RECYCLE 
recycle, recycling centre, unmanned 
009_SNIP 
devils parsnip 
010_PARASITE 
parasite 
011_PAVILION 
pavilion, poolbeg 
012_SHED 
 
013_ARK 
ark 
014_OFFICE BIRR 
office 
015_HUT 
bonafide doghouse 
016_DECK 
deck, dog 
017_CHARGE 
electric cars, drive through, drivethru 
018_LIVE LANE 
housing, lane, residential 
020_CANAL 
reuse, reappropriate, infrastructure 
021_BED 
dog bed, leopard skin 
035_NURSERY 
nursery, fitted seating,  
036_REALITY CUES 
sponge bob, catbells 
099_SCRAPS 
miscellany